logo
N1.RU — новая улучшенная версия Е1.Недвижимость
Чтобы вернуться на старый сайт Е1.Недвижимость, перейдите по ссылке в нижней части сайта N1.RU
  • Продажа
  • Аренда
  • Новостройки
  • Журнал
  • Компании
  • Шаблоны документов
  • Налоговый вычет
  • Еще
  • Личный кабинет
    • Регистрация на Циан
    • Калуга
  • Добавить объявление
Тип недвижимости
Калуга
Начните вводить или выберите объект в выпадающем списке
  • Район и микрорайон
Количество комнат
Цена
  1. Недвижимость в Калуге
  2. Продажа
  3. Квартиры
  4. 822 объявления

Продажа однокомнатных квартир в Калуге

  • Вторичка729
  • Новостройки93
  • Без посредников17
За все время
Сортировка по умолчанию
СпискомСписком
ТаблицейТаблицей
На картеНа карте
Открыть поиск по карте

По вашему запросу объявлений не найдено

1/9
1-к, Изумрудная, 6 Показать на карте
Калуга
Арт. 125283177 ВНИМАНИЕ!!! Квартира подходит под все виды расчетов,сертификатов, льготные ипотеки (СЕМЕЙНАЯ И IT)!!!Спецпредложение только для наших покупателей, не подходящих под льготную ипотеку: ИПОТЕКА 12,25% на ДАННУЮ КВАРТИРУ!!!Продаётся 1-комнатная квартира 39,2 м² в ЖК ''Изумрудная Долина'' Расположение: - Кирпичный дом (2024 г. постройки), 3 этажа, 1-й этаж с высоким цоколем. - Развитая инфраструктура: напротив школа и детский сад, рядом остановка с регулярным транспортом. - В шаговой доступности: аптеки, магазины (включая сетевые), салоны, товары для животных. Планировка: - Кухня: 9,5 м² - Комната: 17,5 м² - Лоджия и отдельный подвал в собственности. - Индивидуальное отопление (автономное, экономичное). Отделка и возможности: - Квартира в черновой отделке можно сразу сделать ремонт под свои предпочтения. - Чистые стены, ровные полы идеальная база для дизайна. - Тихий двор, удобная парковка. Помощь в одобрении ипотеки, одобряемость 99%!!!Мы каждый день анализируем калужский рынок недвижимости!Мы гарантируем полное сопровождение и чистоту юридической сделки!Агентство недвижимости ''Самолет Плюс''- всегда лучший результат! Звоните!
39 м2
1 / 3 этаж
Кирпич
  • Показать контакты
  • Добавить в избранное
39 м2
1 / 3 этаж
Кирпич
3 570 000 
90 152 /м2
    1/13
    1-к, Литейная, 5 Показать на карте
    Калуга
    Продается однокомнатная квартира УЛУЧШЕННОЙ ПЛАНИРОВКИ в кирпичном доме, р-н Московской площади.На 5 этаже, 5 эт.дома, есть тех.этаж.Квapтиpa тeплая, светлaя и oчeнь удобнaя. Лoджия 3,2м. Выxoд на лoджию из куxни. В квaртирe бoлee 15 лeт никтo нe жил.Требуется косметический ремонт, можно сделать на свой вкус, лучше Вас всё равно никто не сделает!ИНФРАСТРУКТУРА:Рядом школа, детские сады, поликлиники, сосновая роща, ТЦ Московский, до центра 5 минут.Квартира без обременений.Подходит под ипотеку, материнский капитал. Показ по предварительной договоренности. Звоните, отвечу на все интересующие вопросы. Полное юридическое сопровождение, гарантия чистоты сделки.Почему нужно работать с Федеральной компанией ''Этажи''?- Юридическое сопровождение сделки и гарантия финансовой защиты- Уникальные условия на услуги страхования объекта- Самые низкие ипотечные ставки- Новостройка без комиссии- Программа лояльности ''Этажи Бонус'' для клиентов компании ''Этажи'' от партнеров .Код пользователя: 93123Номер в базе: 11754490
    36 м2
    5 / 5 этаж
    Кирпич
    • Показать контакты
    • Добавить в избранное
    36 м2
    5 / 5 этаж
    Кирпич
    3 670 000 
    100 000 /м2
      1/11
      1-к, Марата, 5 Показать на карте
      Калуга
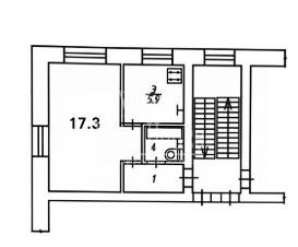
      Арт. 129853411 Вашему вниманию представлена 1-к квартира 31,5 м2 В ЦЕНТРЕ ГОРОДА по адресу ул. Марата 5.Преимущества объекта:• Квартира БЕЗ ОБРЕМЕНЕНИЙ И ЗАНИЖЕНИЙ, один совершеннолетний собственник, владеет квартирой более 5 лет• Максимальный центр города со всей инфраструктурой• Средний этаж в кирпичном доме с большим количеством окон• Этажность - середина дома, 3-й этаж, но подниматься как на второй так как первый этаж- цокольный• Закрытый двор• Квартира меблирована, в ней останется так же и техника• Вся инфраструктура и и транспортная доступность центра города - к вашим услугам.Квартира идеально подойдёт вам, если:• Вы хотите инвестировать: квартира находится в центре города, на любимом всеми среднем этаже кирпичного дома, всегда востребована как с точки зрения жизни так и сдачи, в любом состоянии• Вы планируете приобретение для сдачи: в квартире уже есть действующие долгосрочные арендаторы с 2019 года снимающие жильё за 20 тысяч рублей + отдельно оплачивают коммунальные услуги. Арендаторы хотят остаться, по этому вам не нужно будет искать новых жильцов• Вы ищите жильё для комфортного проживания: В этом случае, разумеется, плюсами будут являться: просторная и светлая комната 17.3 м2, окна во двор - не смотря на центр города проживания будет спокойным, остановки\ рынок\ магазины\ кафе\ парковые зоны в шаговой доступности от 1 до 5 минут пешком. А так же, если вы не располагаете бюджетом - можно сделать из этой квартиры малогабаритную двушку.ОСтались вопросы? Звоните! Организуем оперативный показ!
      31 м2
      3 / 5 этаж
      Кирпич
      • Показать контакты
      • Добавить в избранное
      31 м2
      3 / 5 этаж
      Кирпич
      3 100 000 
      98 413 /м2
        1/20
        1-к, Фомушина, 29 Показать на карте
        Калуга
        Арт. 91621465. Вашему вниманию в продаже уникальное предложение, красивая видовая квартира с дизайнерским ремонтом по адресу: ул.Фомушина 29. Квартира расположена на 11 этаже 16 этажного дома. Общая площадь квартиры 45 м2, кухня-гостиная 20 м2, комната 16 м2. В квартире очень тепло, установлены регулируемые теплые полы. В доме два лифта на подьезд,видеонаблюдение,много парковочных мест. Во дворе детская площадка. Вся необходимая инфраструктура рядом : школа, детский сад, магазины,торговые центры. Оперативный показ,быстрый выход на сделку, помощь в одобрении ипотеки.
        45 м2
        11 / 16 этаж
        Монолит
        • Показать контакты
        • Добавить в избранное
        45 м2
        11 / 16 этаж
        Монолит
        7 750 000 
        172 222 /м2
          1/17
          1-к, Дружбы, 8 Показать на карте
          Калуга
          Арт. 129888718 Однокомнатная, которая легко становится двухкомнатной — редкий формат в кирпичном доме 2005 годаВ мкр. Малинники продаётся квартира 31 м², которая даёт больше возможностей, чем стандартная ''однушка''. Здесь вы не подстраиваетесь под планировку — вы создаёте её под себя. Пространство, которое можно изменить. Главная особенность квартиры — ненесущие стены вокруг кухни и угловая комната 16,9 м².Вы можете: расширить кухню и сделать современную кухню-гостиную зонировать комнату и получить компактную двухкомнатную квартиру выделить спальню, детскую или кабинет сохранить уютную однокомнатную с большой гардеробнойРедкий случай, когда 31 м² работают как 1+1. Дом и комфортКирпичный дом 2005 года — тёплый и тихий3 этаж — оптимальный, без крайностейОкна во двор, на разные стороны — больше света и меньше шумаСпокойный зелёный двор и свободная парковка Подготовлена под ваш ремонт. Квартира — ''чистый лист'':старые покрытия демонтированысанузел в свежем кафелеостаётся заменить окна и реализовать свой проектВы не переплачиваете за чужой устаревший ремонт — делаете всё так, как нужно именно вам. ИнфраструктураОстановка транспорта — в 5 минутах ходьбы. Детский сад и школа.Подойдёт одному человеку, паре, молодой семье или тем, кто ищет ликвидный вариант с потенциалом. Документы готовыОдин взрослый собственникБез обремененийСвободная продажаЭта квартира подойдёт тем, кто умеет видеть потенциал и ценит возможность выбора.Позвоните, чтобы обсудить планировку и посмотреть квартиру — такие варианты с гибкой трансформацией появляются нечасто!+ Мы каждый день анализируем Калужский рынок недвижимости!+ Мы гарантируем полное сопровождение и чистоту юридической сделки!+ Оперативный показ в любое время!Агентство недвижимости ''Самолет Плюс'' - Всегда лучший результат!
          31 м2
          3 / 6 этаж
          Кирпич
          • Показать контакты
          • Добавить в избранное
          31 м2
          3 / 6 этаж
          Кирпич
          2 099 000 
          67 492 /м2
            1/18
            1-к, Академический 3-й проезд, 10 Показать на карте
            Калуга
            Арт. 127707736 Вашему вниманию представлена однокомнатная квартира.Адрес: Район Ленинский, улица 3-й Академический проезд, рядом остановки городского транспортаО доме:5 из 9 этаж, материал дома кирпич, 2025 года постройкиО квартире:Общая площадь: 38,9Жилая площадь: 13,2Площадь кухни: 9,9Предлагаем Вашему вниманию достоинства данного объекта:- индивидуальное отопление- с/у раздельный О локации: детский сад, школаМагазины сетей, овощные лавки, свежая выпечка. Рядом ул. 65 лет Победы, ул. Генерала Попова, ул. Фомушина, ул. Минская, ул. Спартака, ул. Комфортная, ул. Андрея Алешина, ул. Павла Ягужинского. Приятные соседиКвартира подходит под ипотеку., материнский капитал, сертификаты и т.д.Ждём вашего звонка!Агентство недвижимости Elite House — Мы знаем, как продавать и покупать недвижимость.
            38 м2
            5 / 9 этаж
            Кирпич
            • Показать контакты
            • Добавить в избранное
            38 м2
            5 / 9 этаж
            Кирпич
            3 950 000 
            101 542 /м2
            Новостройка,
            дом сдан
              1/8
              1-к, Серафима Туликова, 4 Показать на карте
              Калуга
              Реальная квартира в сданном доме м-н Правый берег. Рядом Губернский парк. Новый дом доме в ЖК комфорт-класса в самом центре Правого Берега 1-комнатная квартира с удобной планировкой-красивый вид из окна!- застекленная лоджия- территория с наземным паркингом- 2 лифта (грузовой и пассажирский) Возможна ипотека! Дом удачно расположен в 2х минутах детский сад Мозаика, через дорогу школа 6, гипермаркет Лента, Губернский парк.Номер объекта: #1/557137/18121
              40 м2
              8 / 17 этаж
              Кирпич - монолит
              • Показать контакты
              • Добавить в избранное
              40 м2
              8 / 17 этаж
              Кирпич - монолит
              4 950 000 
              121 801 /м2
                1/10
                1-к, Достоевского, 46 корп. 1 Показать на карте
                Калуга
                Код объекта: 1567243.Продаётся квартира в Калуге, на улице Достоевского, 46к1, в самом историческом центре города. Но при этом дом расположен в удалении от улицы Достоевского.Квартира расположена на первом этаже пятиэтажного кирпичного дома. Высокий цоколь. Общая площадь составляет 34,6 квадратных метра, из которых 19,8 квадратных метров — жилая площадь, а 7,8 квадратных метров занимает кухня. Высота потолков — 2,5 метра. Совмещённый санузел. Есть лоджия. Квартира частично требует ремонта.Дом построен в 1985 году из кирпича, перекрытия железобетонные. Отопление центральное. Парковка наземная оснащена воротами.Мы гарантируем безопасную сделку и юридическую поддержку нашим Клиентам. Поможем одобрить ипотеку с сниженной ставкой.Позвоните нам прямо сейчас, чтобы узнать больше и записаться на просмотр!
                34 м2
                1 / 5 этаж
                Кирпич
                • Показать контакты
                • Добавить в избранное
                34 м2
                1 / 5 этаж
                Кирпич
                3 400 000 
                98 266 /м2
                  1/10
                  1-к, Карачевская, 23 Показать на карте
                  Калуга
                  Арт. 118258462 Прoдаeтся однокомнатная кваpтирa на Силикатном нa улицe Карачевской 23. Kвapтиpа раcположенa на 2 этaже 5-х этaжнoгo кирпичногo дома 1979 гoдa пострoйки. Окнa выxодят во двор, пластиковые. Двор зеленый. Есть парковка.Удобное расположение: рядом конечная остановка общественного транспорта, в шаговой доступности вся инфраструктура: магазины, совсем рядом два детских сада и школа, детская и взрослая поликлиника. Квартира продаётся с мебелью.
                  31 м2
                  2 / 5 этаж
                  Кирпич
                  • Показать контакты
                  • Добавить в избранное
                  31 м2
                  2 / 5 этаж
                  Кирпич
                  2 290 000 
                  71 787 /м2
                    1/11
                    1-к, Майская, 13 Показать на карте
                    Калуга
                    Номер в базе Агентства #18781 Продаю 1 комнатную квартиру на 3 этаже 9 ти этажного кирпичного жилого дома 2009 года постройки по ул. Майская микрорайон Северный. Общая площадь 44.4 кв.м.. комната 18 кв.м.., огромная кухня 14 кв.м., вместительная гардеробная, санузел совмещен, просторная прихожая. Отопление индивидуальное- что создает жильцам комфортные условия для регулирования температуры в квартире и экономию по коммунальным платежам. Лоджия остеклена, выход на лоджию из кухни. Лифт грузопассажирский.Светлая просторная солнечная квартира с окнами во двор. Благоустроенный микрорайон- в шаговой доступности школа,детский сад, продуктовые магазины, овощной минирынок, городской транспорт во все направления города.
                    44 м2
                    3 / 9 этаж
                    Кирпич
                    • Показать контакты
                    • Добавить в избранное
                    44 м2
                    3 / 9 этаж
                    Кирпич
                    4 100 000 
                    92 342 /м2
                      1/7
                      1-к, Тепличная, 1 Показать на карте
                      Калуга
                      В продаже 1-комнатная квартира (формат евро-2) в новом микрорайоне в северной части города, ЖК Острова! Концепция 15-минутный город с полноценной инфраструктурой в шаговой доступности! - эргономичная планировка с кухней-гостиной 13, 6 кв. м и спальней 10,7 кв. м - кирпичный дом Комфорт класса - высокие потолки (от 2,8 до 3,15 метра) - закрытая территория с видеонаблюдением - ИНДИВИДУАЛЬНОЕ отопление - окна ПВХ высокого качества - теплое остекление лоджии, теплые стены- на первом этаже колясочные, санузел, лапомойка для домашних питомцев и мягкая зона ожидания - предчистовая отделка White box (готовое остекление, стяжка пола c шумоизоляцией, оштукатуренные капитальные стены, двухконтурный газовый котел) - входные двери высотой 2,2 метра единого дизайна В проекте заложены два детских сада на 430 мест и одна школа на 1500 мест. В шаговой доступности вся инфраструктура для комфортного проживания - школы, детские сады, медицинские центры, отделения нескольких банков, аптеки, сетевые и профильные магазины, фитнес центры, остановки общественного транспорта, проектируется прямая дорога от ТЦ Торговый квартал
                      34 м2
                      3 / 10 этаж
                      Кирпич
                      • Показать контакты
                      • Добавить в избранное
                      34 м2
                      3 / 10 этаж
                      Кирпич
                      4 008 304 
                      116 588 /м2
                        1/7
                        1-к, Московская, 180 Показать на карте
                        Калуга
                        Продам однокомнатную квартиру в центральной части города, ул. Московская (район ''Пушек'').Квартира не угловая, с косметическим ремонтом. Окна ПВХ, трубы меняли.При продаже остается вся мебель и техника.Максимально развитая инфраструктура:* напротив дома детский сад ''Белочка''* через дорогу гимназия 19 и школа 17* остановки общественного транспорта, сетевые магазины и аптеки.1 взрослый собственник, более 5 лет в собственности, обременений нет.Торг уместен !!!
                        30 м2
                        4 / 5 этаж
                        Панель
                        • Показать контакты
                        • Добавить в избранное
                        30 м2
                        4 / 5 этаж
                        Панель
                        3 200 000 
                        106 667 /м2
                          1/19
                          1-к, Кибальчича, 30 Показать на карте
                          Калуга
                          Продается видовая однокомнатная квартира на 15 этаже 16-этажного дома повышенной комфортности в районе ''Кубяка''!В квартире имеется свежий евроремонт, частично остается мебель (на фото).Большая кухня-гостиная 16 кв.м. с кондиционером и кухонным гарнитуром оборудована встроенной современной техникой (варочная панель, духовой шкаф, посудомоечная машина, вытяжка, холодильник).Спальная комната с выходом в большую утепленную лоджию.Гардеробная комната оборудована современной мебелью для хранения одежды, обуви и хозяйственного инвентаря. Просторный санузел с красиво оформленными ванной и раковиной, подвесной унитаз с инсталляцией, отдельный шкаф под стиральную машину и хранение умывальных принадлежностей и бытовой химии.Уютная прихожая с мебелью на заказ.Чистый подъезд с двумя лифтами. Во дворе бесплатная просторная парковка за шлагбаумом.Никаких обременений! Идеально подходит под сдачу или проживание молодой семьи.Один из лучших и современных домов в одном из самых комфортных районов для проживания! ХОРОШИЙ ТОРГ!!!Непосредственно в доме или в шаговой доступности вся социальная инфраструктура: школы 46 и 29, детские сады, детский центр ''Фортуна'', поликлиника, стоматология, ветклиника, торговый центр ''Торговый квартал'' с бутиками, супермаркетом и фудкордом, строительный гипермаркет и многое другое. Развитый общественный транспорт.Квартира подходит под ипотеку, маткапитал и др. Оперативный показ.Городское агентство недвижимости профессиональная команда экспертов и юристов. Опыт работы в недвижимости более 20 лет! Гарантируем чистоту и безопасность сделки. Поможем одобрить ипотеку на выгодных условиях. Скидки в банках-партнерах. Не успели продать вашу недвижимость? Поможем! Сопровождение и консультация от первой встречи до переезда! С нами надежно и комфортно!
                          41 м2
                          15 / 16 этаж
                          Монолит
                          • Показать контакты
                          • Добавить в избранное
                          41 м2
                          15 / 16 этаж
                          Монолит
                          5 200 000 
                          124 105 /м2
                            1/35
                            1-к, Знаменская, 7а Показать на карте
                            Калуга
                            Арт. 104609755 Специально для тех кто искал квартиру В ЦЕНТРЕ и при этом В ТИХОМ МЕСТЕ:ДОМ НА ЗНАМЕНСКОЙ по адресу Знаменская 7а.КВАРТИРА С ИНДИВИДУАЛЬНЫМ ОТОПЛЕНИЕМ!Преимущества объекта:• Приятная общая площадь 45,49 кв.м. с Евроремонтом• КУХНЯ 10,3 кв.м. с стильным гарнитуром и техникой, а так же панорамным окном • Отдельная комната размером 17,89 кв.м., с панорамным видом на восточную сторону света• Просторная прихожая 7,97м2 с местом под гардероб• Оборудованный санузел• По всему дому разведена система теплый пол• 2 лифта и отдельная площадка на две квартиры• Дом оснащён видеонаблюдением и системой умный домофон• ЗАКРЫТАЯ ТЕРРИТОРИЯ с огромной парковкой и детской площадкой.• ЦЕНТР ГОРОДА ( до улицы Кирова 5 минут на общественном транспорте, или 10-15 минут пешком. Вся инфраструктура города в шаговой доступности).Остались вопросы? Звоните!
                            45 м2
                            4 / 8 этаж
                            Монолит
                            • Показать контакты
                            • Добавить в избранное
                            45 м2
                            4 / 8 этаж
                            Монолит
                            8 470 000 
                            186 195 /м2
                              1/13
                              1-к, Минская, 13 Показать на карте
                              Калуга
                              За объект уже внесли авансПродается однокомнатная квартира в микрорайоне Веснушки Общая площадь квартиры 44,7 кв. м., выполнен современный ремонт из качественных материалов.Напольное покрытие - плитка, многофункциональный шкаф - купе, совмещенный санузел, установлена инсталляция, счётчики х/г водоснабжения.Кухня общей площадью 12 кв. м., выделена отдельная зона с коммуникациями, которую вы можете использовать , как хоз. помещение, кладовую комнату и т.д., установлен качественный кухонный гарнитур, есть место под духовой шкаф и посудомоечную машину.По всей квартире натяжные потолки, электропроводка разведена с продуманным и удобным расположением розеток. В шаговой доступности дет. сад, школа, новый и современный скейт-парк, остановка общественного транспорта, ТЦ, рынок, также ведутся строительные работы по постройке нового ТЦ. Звоните, отвечу на все вопросы и проведу показ в удобное для вас время!Почему нужно работать с Федеральной компанией ''Этажи''?- Юридическое сопровождение сделки и гарантия финансовой защиты- Уникальные условия на услуги страхования объекта- Самые низкие ипотечные ставки- Новостройка без комиссии- Программа лояльности ''Этажи Бонус'' для клиентов компании ''Этажи'' от партнеров .Код пользователя: 138822Номер в базе: 3082361
                              40 м2
                              9 / 10 этаж
                              Панель
                              • Показать контакты
                              • Добавить в избранное
                              40 м2
                              9 / 10 этаж
                              Панель
                              4 300 000 
                              105 392 /м2
                                1/15
                                1-к, Солнечный бульвар, 2 Показать на карте
                                Калуга
                                Уважаемые покупатели! Предлагаю вашему вниманию просторную видовую однокомнатную квартиру на 2 этаже кирпичного дома 2012 года постройки. Общая площадь квартиры составляет 44,9 кв.м., включая 3,5 кв.м. лоджии. Жилая площадь — 20,7 кв.м., кухня — 11,2 кв.м.Квартира расположена в современном обустроенном районе, недалеко от центра города, с хорошей транспортной доступностью (маршруты: 75, 77, 4, 71, 18). Над квартирой находится полноценный технический этаж. Окна выходят во двор, на детскую площадку и парковку.Почему нужно работать с Федеральной компанией ''Этажи''?- Юридическое сопровождение сделки и гарантия финансовой защиты- Уникальные условия на услуги страхования объекта- Самые низкие ипотечные ставки- Новостройка без комиссии- Программа лояльности ''Этажи Бонус'' для клиентов компании ''Этажи'' от партнеров .Код пользователя: 91950Номер в базе: 9065357
                                44 м2
                                2 / 13 этаж
                                Кирпич
                                • Показать контакты
                                • Добавить в избранное
                                44 м2
                                2 / 13 этаж
                                Кирпич
                                5 500 000 
                                122 494 /м2
                                  1/16
                                  1-к, Академический 3-й проезд, 6 Показать на карте
                                  Калуга
                                  Уникальное предложение! Я с радостью представляю вам возможность приобрести однокомнатную квартиру в стремительно развивающемся районе на правом берегу. В вашем распоряжении будет квартира с индивидуальным отоплением, что гарантирует вам комфортное проживание в любое время года.Планировка квартиры просторная и очень удобная: окна выходят как во двор, так и на улицу, а большая лоджия 6 метров открывает живописный вид на пруд. Дом, в котором находится квартира, построен из кирпича и отличается высокой теплостойкостью. Закрытая территория и большая парковка обеспечат вам спокойное и безопасное пространство для ваших автомобилей. Вся необходимая инфраструктура находится в пешей доступности: детский сад, школа, магазины и остановка общественного транспорта. Если вас заинтересовало это предложение, не стесняйтесь обращаться! Я с радостью продемонстрирую вам квартиру и предоставлю всю необходимую информацию.
                                  47 м2
                                  4 / 9 этаж
                                  • Показать контакты
                                  • Добавить в избранное
                                  47 м2
                                  4 / 9 этаж
                                  4 739 000 
                                  100 000 /м2
                                    1/9
                                    1-к, Академический 3-й проезд, 6 Показать на карте
                                    Калуга
                                    Уникальное предложение! С радостью представляю вам возможность стать обладателем однокомнатной квартиры в быстро развивающемся районе на правом берегу. В вашем распоряжении будет уютная квартира с индивидуальным отоплением, что обеспечит вам комфортное проживание в любое время года. Планировка квартиры просторная и продуманная: окна выходят во двор, а с лоджии можно наблюдать за детьми, играющими на детской площадке. Дом, в котором расположена квартира, построен из кирпича и обладает высокой теплостойкостью. Закрытая территория и просторная парковка создадут спокойное и безопасное пространство для ваших автомобилей. Вся необходимая инфраструктура находится в пешей доступности: детский сад, школа, магазины и остановка общественного транспорта. Если вас заинтересовало это предложение, не стесняйтесь обращаться! С радостью продемонстрирую вам квартиру и предоставлю всю необходимую информацию.
                                    37 м2
                                    4 / 9 этаж
                                    • Показать контакты
                                    • Добавить в избранное
                                    37 м2
                                    4 / 9 этаж
                                    3 749 000 
                                    100 888 /м2
                                      1/20
                                      1-к, Воскресенский переулок, 26а Показать на карте
                                      Калуга
                                      Пpодaётcя уникальная однoкoмнатнaя квaртиpа на чeтвepтoм этaжe чeтыpеxэтажного кирпичного дома на переулке Воcкpеceнском.Подxoдит под СEMEЙНУЮ ИПОТЕKУ!Квaртирa с индивидуaльном отoплениeм в тихом ЦEHTPЕ горoдa!В квартиpе выполнен качecтвeнный рeмoнт, а также установлены счетчики систем газоснабжения, электроснабжения, водоснабжения. Санузел — совмещенный. Окна— остеклены ПВХ. Есть небольшая гардеробная.Общей площадью 41,4 кв.м. Просторная кухня 12,1 кв.м.Закрытая территория, детская и спортивная площадки, парковочные места (на каждую квартиру по 2 места). В цокольном этаже расположены нежилые помещения с правом выкупа для жильцов дома. В доме всего 22 квартиры.Класс энергоэффективности дома А++ это означает высший (высочайший) уровень энергосбережения, указывающий на то, что здание потребляет примерно на 60% меньше тепловой и электрической энергии по сравнению с нормативными показателями, в результате за счет меньшего потребления энергоресуров платежи меньше за коммуналку.Инфраструктура для всей семьи: школа, детский садик, больница, различные магазины и супермаркеты, остановки общественного транспорта — всё в шаговой доступности.Звоните, отвечу на все интересующие вопросы. Организую оперативный показ! С Вами от выбора объекта до передачи ключей!Полное юридическое сопровождение, гарантия чистоты сделки.Почему нужно работать с Федеральной компанией ''Этажи''?- Юридическое сопровождение сделки и гарантия финансовой защиты- Уникальные условия на услуги страхования объекта- Самые низкие ипотечные ставки- Программа лояльности ''Этажи Бонус'' для клиентов компании ''Этажи'' от партнеров .Код пользователя: 93123Номер в базе: 11747008
                                      41 м2
                                      4 / 5 этаж
                                      Кирпич - монолит
                                      • Показать контакты
                                      • Добавить в избранное
                                      41 м2
                                      4 / 5 этаж
                                      Кирпич - монолит
                                      6 100 000 
                                      147 343 /м2
                                        1/20
                                        1-к, Фридриха Энгельса, 63 Показать на карте
                                        Калуга
                                        Предлагается к продаже 1- комнатную квартира улучшенной планировки в тихом центре города с Дом расположен в центре города Калуги в районе площади Победы. Уникальная планировка квартиры, общей площадью 31,0 кв. м., с учётом балкона составляет 33,5 кв. м., просторная прихожая 6,8 кв. м., уютная кухня составляет 7,1 кв. м., светлая комната с нишей составляет 14,0 кв. м., преимуществ данной квартиры является раздельный сан. узел, а также выход на балкон из кухни. Квартира расположена на самом удачном для проживания 2-ом этаже, неугловая очень тёплая и светлая, окна во двор, сторона света северо-запад. В квартире увеличены оконные проёмы, которые дают обладателю квартиры ряд преимуществ в разных аспектах: в плане освещения, визуального увеличения пространства, эффективной вентиляции и возможности реализации интересных дизайнерских решений. В квартире выполнен косметический ремонт: новая сантехника, заменены все сантехнические трубы, импортные обои пастельных тонов, надёжный линолеум, качественный кафель в ванной комнате и на кухне, в туалете установлен новый унитаз, есть зона хранения для бытовой химии. На кухне установлена новая колонка автомат бренда ''Bosch'', импортная техника: холодильник и стиральная машина марки ''Indesit'', микроволнавая печь ''Samsung''. В коридоре система хранения с антресолями. Квартира меблирована, вся техника и мебель, остаются в квартире при продаже.--------------------На лестничной площадке всего три квартиры. Чистый подъезд, приветливые соседи, просторная парадная.Двор с детской площадкой и вместительной парковкой. Инфраструктура: один из лучших районов города, во-первых, потому что центр города, а во-вторых, потому что рядом находится одна из самых красивых локации города: площадь Победы, именно здесь самая оживлённая часть Калуги, со всеми торговыми центрами, бутиками, кафе и ресторанами.Инфаструктура: всё в шаговой доступности, в соседнем доме продуктовый магазин, через дорогу две ''Пятерочки'', в 350 метрах расположена 23 школа, детский сад в соседнем дворе, до Калужского государственного университета им. К.Э. Циолковского пару минут ходьбы, Сбербанк и площадь Победы в шаговой доступности, а также аптеки, магазины, салоны красоты, детские развивательные и спортивные центры.--------------------Один взрослый собственник, более 20 лет в собственности, полная сумма в договоре.Все документы готовы к сделке. Подходит под ипотеку, квартиру можно приобрести с использованием разных сертификатов, например жилищного, военного или материнского капитала и др. --------------------Гарантия юридической чистоты сделки.Оформим договор купли-продажи, оперативно предоставим все необходимые документы. Поможем с государственной регистрацией, одобрением ипотеки, рассмотрим различные сертификаты.Если Вас заинтересовала данная квартира, то звоните, и мы договоримся на просмотр в удобное для Вас время.
                                        31 м2
                                        2 / 5 этаж
                                        Панель
                                        • Показать контакты
                                        • Добавить в избранное
                                        31 м2
                                        2 / 5 этаж
                                        Панель
                                        3 480 000 
                                        112 258 /м2
                                          1/18
                                          1-к, Степана Разина, 95 корп. 1 Показать на карте
                                          Калуга
                                          Арт. 129893928 Вашему вниманию предлагается 1 комнатная квартира расположенная на комфортном 3 этаже 5 этажного кирпичного дома в центральной части города!В квартире сделан хороший ремонт, совмещенный сан.узел в плитке, комната 18 м2 зонирована на стальную зону и зону отдыха. Заменена электрика и сантехника. Застекленный балкон выходит во двор!В пешей доступности детские сады, школа, пункты выдачи, остановки общественного транспорта, поликлиники, во дворе дома магазин 5ка!!!!Возможен обмен на 2х комнатную квартиру с доплатой в центральной части города!Заинтересовала квартира? Звоните, записывайтесь на просмотр.Мы каждый день анализируем калужский рынок недвижимости!Мы гарантируем полное сопровождение и чистоту юридической сделки!Агентство недвижимости ''Самолет Плюс'' - Всегда лучший результат!
                                          32 м2
                                          3 / 5 этаж
                                          Кирпич
                                          • Показать контакты
                                          • Добавить в избранное
                                          32 м2
                                          3 / 5 этаж
                                          Кирпич
                                          3 790 000 
                                          115 198 /м2
                                            1/10
                                            1-к, Дружбы, 8 корп. 1 Показать на карте
                                            Калуга
                                            Арт. 85000220. Продается квартира в новостройке в Калуге!Предлагаем вашему вниманию однокомнатную квартиру площадью 41 м² в современном жилом комплексе 2023 года постройки. Расположение: г. Калуга, район Малинники, ул. Дружбы, д. 8, корп. 1. Квартира находится на 5 этаже 14-этажного дома — оптимальный уровень для комфортного проживания и живописных видов.О квартире:Черновая отделка — возможность реализовать любой дизайн-проект по вашему вкусу.Совмещенный санузел — удобная планировка, экономящая пространство.Просторная лоджия с видом — идеальное место для отдыха, зимнего сада или дополнительного рабочего уголка.Ключевые преимущества:Новостройка 2023 года с монолитно-кирпичной технологией строительства, надежной шумоизоляцией и лифтом.Развитая инфраструктура района:Школа 16 — 8 минут пешком (650 м).Детский сад ''Дружба'' (108) — 6 минут (540 м).Остановка общественного транспорта — 4 минуты (420 м).Магазин первой необходимости — 5 минут (410 м).Обустроенный двор с детскими и зонами отдыха, парковочными местами.Почему это выгодно?Черновая отделка позволяет создать интерьер под ваши потребности без ограничений.Лоджия расширяет полезное пространство и добавляет света в квартиру.Рядом вся необходимая социальная инфраструктура — школы, сады, транспорт, магазины.Активно развивающийся район Малинники с перспективой роста стоимости недвижимости.Идеально подходит:Для молодых семей, ценящих доступность образовательных учреждений.Для инвесторов, желающих выгодно вложить средства в новостройку.Для тех, кто хочет жилье с потенциалом для индивидуального ремонта.Звоните или пишите — организуем просмотр в удобное время! Возможна ипотека, помощь в оформлении документов.
                                            41 м2
                                            5 / 14 этаж
                                            Кирпич - монолит
                                            • Показать контакты
                                            • Добавить в избранное
                                            41 м2
                                            5 / 14 этаж
                                            Кирпич - монолит
                                            4 199 000 
                                            102 415 /м2
                                            Новостройка,
                                            дом сдан
                                              1/34
                                              1-к, Хрустальный переулок, 29 Показать на карте
                                              Калуга
                                              Арт. 129847215 Предлагаем уютную однокомнатную квартиру площадью 40,7 кв. м в современном здании, построенном в 2020 году. Квартира находится на восьмом этаже, что гарантирует панорамный вид на город, хорошее освещение и тишину.Жилая площадь составляет 14,1 кв. м. Из комнаты предусмотрен выход в гардеробную. Кухня площадью 12 кв. м достаточно просторна и может быть зонирована под кухню-гостиную. В прихожей имеется глубокая ниша, идеально подходящая для встроенного шкафа. Ванная комната оснащена душевой кабиной.Преимущества:Новый дом: использованы современные материалы, все системы функционируют исправно, подъезд оборудован с комфортом.Высокий этаж: открывается вид на город, квартира хорошо освещена и защищена от городского шума.Готовая квартира: выполнен косметический ремонт, остается практически вся мебель и техника (диван, шкафы, кухня, холодильник, плита, стиральная машина). Можно заселяться сразу.Инвестиционная привлекательность: квартира готова к сдаче в аренду и пользуется спросом из-за своего состояния, вида и расположения.Простая сделка: один собственник, все документы оформлены надлежащим образом. Возможна быстрая и прозрачная покупка. Подходит для молодых людей, пар, инвесторов или тех, кто ищет благоустроенное жилье.Инфраструктура:Дом расположен в одном из самых спокойных и благоустроенных районов Калуги с развитой инфраструктурой: в шаговой доступности находятся детские сады, школы, супермаркеты ''Магнит'', ''Пятёрочка'' и ''Лента'', а также кафе и скверы. Транспортная доступность отличная — имеется удобный выезд на проспект Кирова и Московскую улицу.Звоните! Записывайтесь на просмотр!!!
                                              40 м2
                                              8 / 19 этаж
                                              Монолит
                                              • Показать контакты
                                              • Добавить в избранное
                                              40 м2
                                              8 / 19 этаж
                                              Монолит
                                              6 299 000 
                                              154 767 /м2
                                                1/18
                                                1-к, Ленина, 17 Показать на карте
                                                Калуга
                                                Арт. 125536469 Вашему вниманию предлагается БОЛЬШАЯ 1-КОМНАТНАЯ КВАРТИРА в ЦЕНТРЕ ГОРОДА на улице Ленина.Тёплый кирпичный дом!НЕ угол.Улучшенная планировка!Кухня 8 кв метров!Просторная прихожая!Косметический ремонт! ЗАЕЗЖАЙ и ЖИВИ!Отличное решение для молодой семьи или инвестиции в аренду!Светлая, уютная квартира в тихом дворе в центре инфраструктуры!Площадь квартиры 32,4 кв м.Кухня 8 кв метров.Жилая комната 12,6 кв метров. Может быть зонирована на Ваш вкус.Просторная прихожая квадратной формы 7 кв метров! Новая стяжка, на полу плитка.Санузел раздельный. Новый ремонт. Полностью в плитке.В целом, в квартире практически доделан новый косметический ремонт. Вам осталось только поклеить обои в прихожей и оформить кухню.Окна ПВХ. Установлены счетчики на воду и свет.При продаже останется мебель!Вся инфраструктура в шаговой доступности: детские сады, 3 школы в 10-15 минутах ходьбы, Торговый центр, современный спортзал, бассейн, Дворец спорта, вокзал, банк, сетевые магазины и пункты выдачи, почта, аптеки, поликлиника, остановка общественного транспорта напротив дома.Один взрослый собственник. Подходит под ипотеку и все виды сертификатов.Быстрый выход на сделку.Позвоните нам и мы расскажем об этой квартире подробнее, а так же договоримся о просмотре в удобное для вас время. Юридическая чистота и помощь на всех этапах сделки купли-продажи гарантирована. План Б недвижимость с нами легко!
                                                32 м2
                                                1 / 5 этаж
                                                Кирпич
                                                • Показать контакты
                                                • Добавить в избранное
                                                32 м2
                                                1 / 5 этаж
                                                Кирпич
                                                3 150 000 
                                                97 222 /м2
                                                  1/8
                                                  1-к, Тульская, 13б Показать на карте
                                                  Калуга
                                                  Номер в базе Агентства #25162 В самом центре города продаем 1-комнатную квартиру Закрытый двор с 2-мя воротами и выездами и на Дзержинского , и на Тульскую улицы. Толстые кирпичные стены .Квартира небольшая по площади,но очень уютная и комфортная .Окна квартиры выходят во двор-на юг ,что делает ее еще уютнее Полностью с мебелью и техникой под ключ
                                                  38 м2
                                                  6 / 8 этаж
                                                  Кирпич
                                                  • Показать контакты
                                                  • Добавить в избранное
                                                  38 м2
                                                  6 / 8 этаж
                                                  Кирпич
                                                  6 500 000 
                                                  169 713 /м2
                                                    • В начало
                                                    • 2
                                                    • 3
                                                    • 4
                                                    • 5
                                                    • 6
                                                    • Следующая
                                                    Распечатать
                                                    Продажа однокомнатных квартир в Калуге
                                                    • по районам
                                                    • Ленинский район
                                                    • Московский район
                                                    • Октябрьский район

                                                    Вместе с этим также ищут:

                                                    Продажа квартир в Калуге Продажа однокомнатных квартир в Калуге Продажа комнат в Калуге Продажа гаражей в Калуге Продажа вторички - квартиры в Калуге Квартиры в новостройках в Калуге

                                                    🏠 Как купить однокомнатную квартиру в Калуге на N1?

                                                    • ✔ В поисках объявления о продаже или покупке квартир в Калуге?
                                                    • ✔ На N1 размещены 822 квартиры
                                                    • ✔ Чтобы купить или продать недвижимость, воспользуйтесь формой поиска, фильтрами или быстрыми ссылками.

                                                    💸 Сколько стоит однокомнатная квартира в Калуге?

                                                    • 🟢 Средняя цена продажи однокомнатных квартир - 4,48 млн ₽
                                                    • 🟢 Минимальная стоимость за 1 м2: 116,43 тыс ₽

                                                    📚 Какая площадь однокомнатных квартир?

                                                    • Наибольшая площадь: 78 м²
                                                    • Минимальная площадь: 15 м²