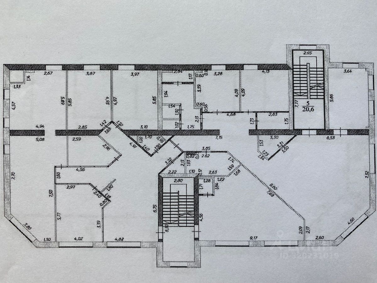
Предлагается Вашему вниманию уникальное предложение ,ПСН не жилое 550м.кв., меблированное , в активной части города. В данный момент используется как офис.Помещение находиться на 2 этаже с отдельным входом в отдельно стоящем здании и состоит из 10 кабинетов , кухонной зоны ,4 сан узлов ,серверной и несколько вспомогательных комнат. Земельный участок составляет 11.3 сотки -Земли населенных пунктов. Помещение находиться на одном уровне с выходом на 3 этаж, (мансарду) эксплуатируемую ,за счет которой можно существенно увеличить площадь. Ремонт современный из дизайнерских материалов. Здание построено полностью из кирпича , введено в эксплуатацию в 2015г.Коммуникации городские, вода,эл-во ,канализация,отопление свое 2 котла по 40 квт.,вентиляция и 14 кондиционеров.
Предлагается Вашему вниманию уникальное предложение ,ПСН не жилое 550м.кв., меблированное , в активной части города. В данный момент используется как офис.Помещение находиться на 2 этаже с отдельным входом в отдельно стоящем здании и состоит из 10 кабинетов , кухонной зоны ,4 сан узлов ,серверной и несколько вспомогательных комнат. Земельный участок составляет 11.3 сотки -Земли населенных пунктов. Помещение находиться на одном уровне с выходом на 3 этаж, (мансарду) эксплуатируемую ,за счет которой можно существенно увеличить площадь. Ремонт современный из дизайнерских материалов. Здание построено полностью из кирпича , введено в эксплуатацию в 2015г.Коммуникации городские, вода,эл-во ,канализация,отопление свое 2 котла по 40 квт.,вентиляция и 14 кондиционеров.В помещении не так много несущих стен ,где можно играть площадью под свои нужды.Остальные вопросы по телефону.