Если цена в объявлении изменится, мы сразу сообщим вам об этом на электронную почту.
Нажимая «Подписаться», вы соглашаетесь с правилами.
продам дом, Нара12 390 000 ₽
14 окт
Дата публикации объявления
Обн. 12 мая
Дата обновления объявления
1
Количество просмотров (+ просмотры за сегодня)
Спецпредложение
Турбо x8
88 500 ₽/м²
Чистая продажа
Термин "Чистая продажа" означает, что в квартире никто не прописан или
есть куда выписаться и вывезти вещи. Это лучший вариант для покупателя.
Вероятность срыва сделки минимальна.
Этажей1
Площадь участка10 соток
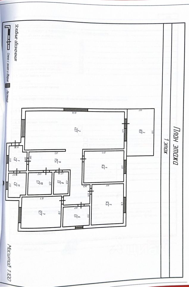
Общая площадь140 м2
ЭлектричествоЕсть
Газоснабжениецентральное
Продажа ЗАСТРОЙЩИКА ДОМИК с БАССЕЙНОМ в Деревне МОСКОВСКАЯ Инфраструктура ~ В продаже БЛОЧНЫЙ Дом С ЧИСТОВОЙ Отделкой и с БЛАГОУСТРОЕННОЙ Территорией, площадь дома 141 кв.м., на УЧАСТКЕ 10 соток с БАССЕЙНОМ ~ ДОМ расположен в обжитой, газифицированной и развитой деревне НАРА, ЖУКОВСКОГО Р-НА КАЛУЖСКОЙ ОБЛ., со всей необходимой инфраструктурой ( магазин школа дет.сад и тд.), с удобной транспортной доступностью из НОВАЯ МОСКВА по Калужскому или Варшавскому шоссе (+- 1 км от границы Новой Москвы). ~ ЧИСТОВАЯ ОТДЕЛКА дома, выполняется в настоящий момент, преимущественно из светлых материалов и в стоимость она входит. В ДОМЕ - 3 изолированных комнаты (спален), по 14 кв.м, все светлые, объёмные и комфортные.
Продажа ЗАСТРОЙЩИКА ДОМИК с БАССЕЙНОМ в Деревне МОСКОВСКАЯ Инфраструктура ~ В продаже БЛОЧНЫЙ Дом С ЧИСТОВОЙ Отделкой и с БЛАГОУСТРОЕННОЙ Территорией, площадь дома 141 кв.м., на УЧАСТКЕ 10 соток с БАССЕЙНОМ ~ ДОМ расположен в обжитой, газифицированной и развитой деревне НАРА, ЖУКОВСКОГО Р-НА КАЛУЖСКОЙ ОБЛ., со всей необходимой инфраструктурой ( магазин школа дет.сад и тд.), с удобной транспортной доступностью из НОВАЯ МОСКВА по Калужскому или Варшавскому шоссе (+- 1 км от границы Новой Москвы). ~ ЧИСТОВАЯ ОТДЕЛКА дома, выполняется в настоящий момент, преимущественно из светлых материалов и в стоимость она входит. В ДОМЕ - 3 изолированных комнаты (спален), по 14 кв.м, все светлые, объёмные и комфортные. Большая и просторная гостиная около 28 кв.м имеет большое понарамное окно с выходом на терассу (на фото это видно). ~ КОММУНИКАЦИИ (тарифы деревенские): в указанную стоимость входят все коммуникации - Газ заведенный в дом, Свет, вода - скважина, септик - типа Топаз. ~ ДОМ построен из газоселикатного БЛОКа 300мм D400 с армированием, с УТЕПЛЕНИЕМ 50мм современным материалом Пеноплекс и с облицовкой - штукатурка Короед, на фундаменте - БЕТОННАЯ АРМИРОВАННАЯ Плита. ОКНА - энерго-сберегающие, двух-камерные, стеклопакеты 70мм, профиль. КРОВЛЯ - мягкая материал от ТЕХНОНИКОЛЬ . Потолок утеплен 150мм мин.плитой. ~ УЧАСТОК : ровный, правильной прямоугольной формы, полностью ПОДНЯТ на 0,5 метра и ВЫРОВНЕН. УЧАСТОК Со Своим БАССЕЙНОМ, который устроен из бетонной чаши с соблюдением необходимых правил На участке будет ОРГАНИЗОВАНА Въездная ГРУППА - Откатные ВОРОТА, КОМФОРТНЫЙ Заезд с дороги на участок. Планируется организовать ПАРКОВОЧНЫЕ Места с возможностью поставить до 3 АВТО. Фасадная часть забора установлена на ленточном фундаменте, со вставками из металло-профиля. ~ Деревня НАРА расположена в 3 км от границы НОВОЙ МОСКВЫ и является одним из комфортнейших, экологичных и экономичных мест для отдыха и постоянного проживания рядом с Новой Москвой, на территории посёлка расположен декоративный прудик, детская площадка и площадка для игры в волейбол. Рядом с посёлком примерно в 1 км расположено ИЛЬИНСКОЕ ВОДОХРАНИЛИЩЕ с отличными песчанными пляжами и чистейшей водой. В 5 км от посёлка расположен знаменитый ПАРК ПТИЦ ВОРОБЬИ излюбленное место москвичей. Для активного эмоционального отдыха есть КАРТИНГИ, ПЕЙНТБОЛЬНАЯ ПЛОЩАДКА, ПАРОПЛАНЫ, ГИДРОЦИКЛЫ, ВЕЙКБОРДИНГ и тд.