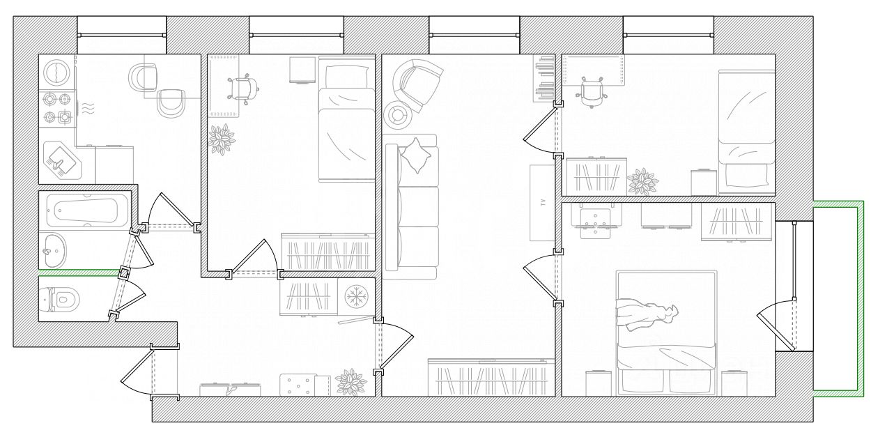
Пол: плитка в кухне и с/у, ламинат в коридоре и комнатах
Потолок: натяжной в двух спальнях, плитка в гостиной и одной спальне, панель - в кухне и с/у
Дом: кирпичный, 1978 г. постройки, капитальный ремонт крыши производился два года назад, тихие интеллигентные соседи
ИДЕАЛЬНО ДЛЯ СЕМЬИ — ВСЁ РЯДОМ: - Остановка ''Дома птицефабрики'' — 4 мин. пешком (1я остановка от Обнинска - можно быстро добраться, маршруты ходят каждые 10 мин.) - Автостанция ''Обнинск'' — 15 минут на общественном транспорте - Детский сад ''Березка'' — прямо во дворе - Школа 2 — 10 минут пешком - Магазины, аптеки, кафе, пункты выдачи — всё в шаговой доступности
ПОДХОДИТ ПОД ЛЮБУЮ СДЕЛКУ: - Наличные - Ипотека - Материнский капитал - Государственные субсидии - Военная ипотека
ПОЧЕМУ ВЫБИРАЮТ НАС? - 18 лет на рынке Обнинска — мы знаем каждый дом, каждый подъезд и все юридические нюансы - Безопасность и прозрачность — юридическая защита каждой сделки - Ипотечный брокер — поможем подобрать банк с лучшей ставкой!
ЗВОНИТЕ И ПРИХОДИТЕ НА ОСМОТР Рады помочь с 9:00 до 21:00, без выходных Поможем подобрать объект под ваши критерии — даже если этот не подошел. ''Бюро недвижимости АдресЪ''. Наши знания Ваша собственность