Если цена в объявлении изменится, мы сразу сообщим вам об этом на электронную почту.
Нажимая «Подписаться», вы соглашаетесь с правилами.
продам 2-к, Степана Разина, 953 997 000 ₽
16 дек
Дата публикации объявления
Обн. 2 апр
Дата обновления объявления
2
Количество просмотров (+ просмотры за сегодня)
83 271 ₽/м²
Чистая продажа
Термин "Чистая продажа" означает, что в квартире никто не прописан или
есть куда выписаться и вывезти вещи. Это лучший вариант для покупателя.
Вероятность срыва сделки минимальна.
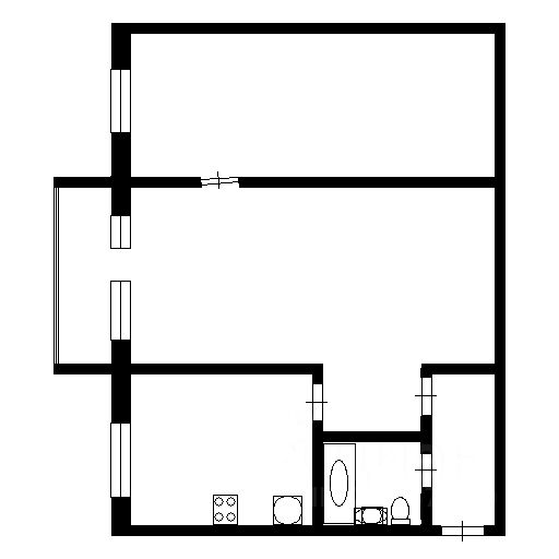
Код объекта: 696413. ПРОСТОРНАЯ КВАРТИРА В РАСШИРЕННОМ ЦЕНТРЕ ГОРОДА !!! Выгодная сделка в Калуге: продаётся уютная двухкомнатная квартира на улице Степана Разина, 95. Этот объект — идеальный выбор для тех, кто ищет комфортное жильё по доступной цене. Квартира расположена на пятом этаже пятиэтажного панельного дома, построенного в 1976 году. Общая площадь — 48 кв. м, жилая — 32 кв. м, площадь кухни — 6,8 кв. м. Комнаты изолированы, их площади составляют 15 и 17 кв. м. Балкон добавляет дополнительное пространство для отдыха. Косметический ремонт позволяет новым владельцам воплотить свои дизайнерские идеи. Окна выходят на улицу и во двор, что обеспечивает достаточное естественное освещение.
Код объекта: 696413. ПРОСТОРНАЯ КВАРТИРА В РАСШИРЕННОМ ЦЕНТРЕ ГОРОДА !!! Выгодная сделка в Калуге: продаётся уютная двухкомнатная квартира на улице Степана Разина, 95. Этот объект — идеальный выбор для тех, кто ищет комфортное жильё по доступной цене. Квартира расположена на пятом этаже пятиэтажного панельного дома, построенного в 1976 году. Общая площадь — 48 кв. м, жилая — 32 кв. м, площадь кухни — 6,8 кв. м. Комнаты изолированы, их площади составляют 15 и 17 кв. м. Балкон добавляет дополнительное пространство для отдыха. Косметический ремонт позволяет новым владельцам воплотить свои дизайнерские идеи. Окна выходят на улицу и во двор, что обеспечивает достаточное естественное освещение. Развитая инфраструктура района порадует жителей: рядом магазины, школы, детские сады и остановки общественного транспорта. Лёгкий доступ к основным магистралям делает эту квартиру ещё более привлекательной. Не упустите шанс стать владельцем этой уютной квартиры. Звоните нам прямо сейчас, чтобы узнать больше и записаться на просмотр. Мы гарантируем безопасную сделку и юридическую поддержку нашим Клиентам. Поможем одобрить ипотеку с сниженной ставкой.