Если цена в объявлении изменится, мы сразу сообщим вам об этом на электронную почту.
Нажимая «Подписаться», вы соглашаетесь с правилами.
продам дом, д. Чижовка8 400 000 ₽
6 янв
Дата публикации объявления
Обн. 12 мая
Дата обновления объявления
70 000 ₽/м²
Чистая продажа
Термин "Чистая продажа" означает, что в квартире никто не прописан или
есть куда выписаться и вывезти вещи. Это лучший вариант для покупателя.
Вероятность срыва сделки минимальна.
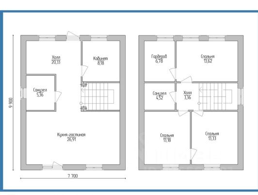
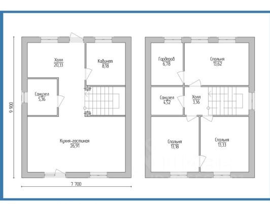
Этажей2
Площадь участка5 соток
Общая площадь120 м2
Представляем вашему вниманию готовый дом от застройщика площадью 120 м2, на участке 5 соток в деревне Чижовке.
Представляем вашему вниманию готовый дом от застройщика площадью 120 м2, на участке 5 соток в деревне Чижовке.
КОМПЛЕКТАЦИ
Фундамент — свайно-ростверговый
Стены — газоблок 400 мм D50
Фасад — декоративная штукатурка короед
Покраска дома в 2 слоя
Окна ПВХ (RENАО или VEКА) 72 м
Крыша — металлочерепица (GRАND LINЕ) 0,50 м
Входная дверь — металлическая
Межэтажные плиты перекрытия П
Утеплённая крыша 250 м
Закладные под коммуникации
Монтаж вентиляционных каналов
Монолитная железобетонная лестница
Межкомнатные перегородки из газоблока 100 м
Преимущества
Дом подходит под льготную ипотеку
Подъезд — асфальт
В доме уже разведена электрика!
Выгода
Спешите приобрести готовый дом под семейную ипотеку до подражание
Заинтересовало вам объект, запишитесь на просмотр, и я вам все покажу и расскажу.