сдам производственное помещение, Болдина, 47 ст1137 000 ₽ в месяц
13 янв
Дата публикации объявления
Обн. 13 мая
Дата обновления объявления
452 ₽/м² в месяц
Параметры
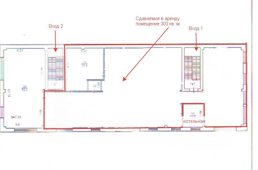
Общая площадь303 м2
Этаж2
Сдается производственное помещение площадью 303 кв. м по ул. Болдина 47, расположенное на 2-ом этаже двухэтажного административного здания: - свободная планировка, доступ в помещение 24/7 - две входные группы - сделан косметический ремонт - есть парковочные места - все центральные коммуникации, 4 туалета, холодная и горячая вода, две мокрые точки.
Сдается производственное помещение площадью 303 кв. м по ул. Болдина 47, расположенное на 2-ом этаже двухэтажного административного здания: - свободная планировка, доступ в помещение 24/7 - две входные группы - сделан косметический ремонт - есть парковочные места - все центральные коммуникации, 4 туалета, холодная и горячая вода, две мокрые точки. - 220/380 В выделенная мощность 70 кВт - круглогодичный подъезд - охраняемая территория 24/7 - видеонаблюдение 24 камеры по всей территории - система сжатый воздух (10 пневморазеток) - система вентиляции - высокоскоростной интернет (оптико-волоконная линия) Помещение расположено на территории производственно-складского комплекса с благоустроенной и огороженной по периметру территорией имеет отличное месторасположение, в шаговой доступности находится развитая инфраструктура, остановки общественного транспорта. Остались вопросы, звоните! Мы каждый день анализируем Калужский рынок недвижимости! У нас огромный опыт работы на рынке недвижимости. Мы гарантируем индивидуальный подход к каждому клиенту. Окажем помощь в одобрении бизнес-ипотеки. Оперативно подберем необходимый вариант для Вашего бизнеса! АН Домовой - Всегда лучший результат!: - полное юридическое сопровождение сделки, - предоставление исчерпывающих консультаций по вопросам аренды и покупки недвижимости, - проведение переговоров, подготовка необходимых документов для сделок с Вашим участием, - помощь в продаже, покупке, сдаче в аренду недвижимости.