Квадратный участок вдоль леса, поселок газифицирован (труба проходит вдоль участка под землей), свет оформлен (3 фазы, можно использовать).
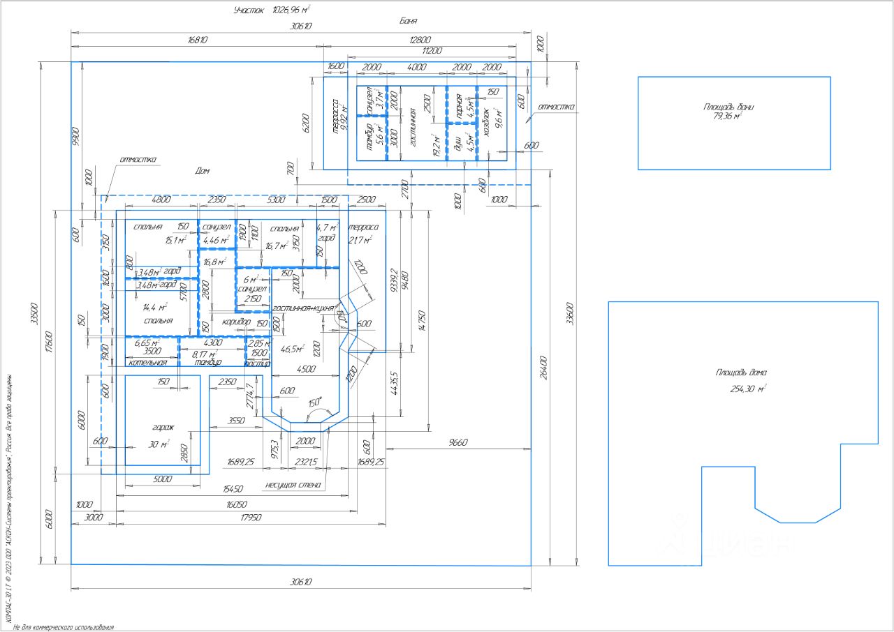
Фундамент дома и второй застройки (баня или летняя кухня) заливался в 2023 году, лента + плита. Бетон марки 400, арматура ГОСТ. Толщина и ширина выдержит до 3 этажей. Бытовка новая, практически не использовалась.




































