сдам производственное помещение, Тарутинская, 171б662 177 ₽ в месяц
28 янв
Дата публикации объявления
Обн. 11 мая
Дата обновления объявления
Топ
459 ₽/м² в месяц
Параметры
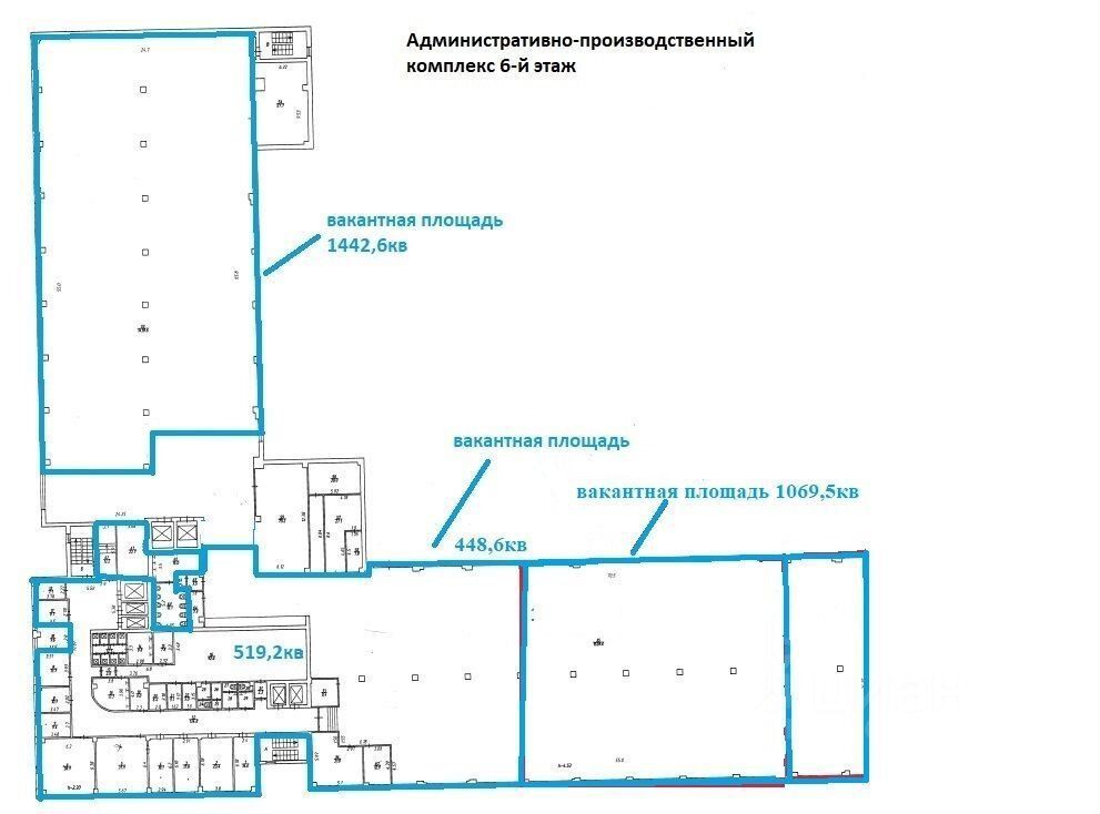
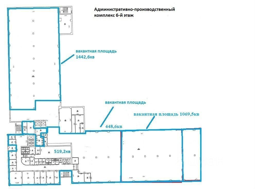
Общая площадь1442 м2
Этаж3
Индивидуальный подход!!! Чистое,сухое,отапливаемое помещение. Есть грузовые лифты. Вакантная производственная площадь на этаже составляет 2 960,7кв, возможно деление (1442,6+448,6+1069,5) Офисная часть 519,2кв