1-к, Комфортная, 18 Показать на карте
Калуга
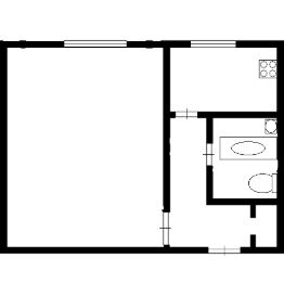
Продается великолепная студия в современном жилом комплексе ''Комфорт Парк'', где каждый уголок создан для вашего комфорта и уюта! Общая площадь квартиры составляет 37 кв.м., что позволяет вам с легкостью реализовать любые дизайнерские идеи. Квартира находится в черновой отделке, что дает вам возможность создать пространство своей мечты, полностью адаптированное под ваши предпочтения.Комплекс окружен закрытой, охраняемой территорией, где вы сможете наслаждаться спокойствием и безопасностью. Здесь предусмотрены детские площадки для ваших малышей, уютные лавочки для отдыха, фонтан, а также зоны для барбекю и спортивные площадки для активного досуга. Удобная парковка во дворе, а также возможность приобрести или арендовать подземное парковочное место, сделают вашу жизнь еще боле Вся необходимая инфраструктура находится в шаговой доступности: магазины, аптеки, школы и детские сады, фитнес-центр и бассейн все, что нужно для комфортной жизни, рядом с вашим новым домом.Не упустите шанс стать владельцем этой замечательной студии в ЖК ''Комфорт Парк''! Звоните прямо сейчас, чтобы записаться на просмотр и сделать первый шаг к вашей новой жизни!Почему нужно работать с Федеральной компанией ''Этажи''?- Юридическое сопровождение сделки и гарантия финансовой защиты- Уникальные условия на услуги страхования объекта- Самые низкие ипотечные ставки- Новостройка без комиссии- Программа лояльности ''Этажи Бонус'' для клиентов компании ''Этажи'' от партнеров .Код пользователя: 84350Номер в базе: 5678837
37 м2
2 / 17 этаж
Монолит
- Показать контакты
- Добавить в избранное
37 м2
2 / 17 этаж
Монолит
4 680 000
126 486 /м2
