Отдельностоящее здание
Никитина, 12а Показать на карте
Никитина, 12а Показать на карте
Калуга
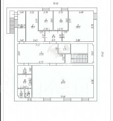
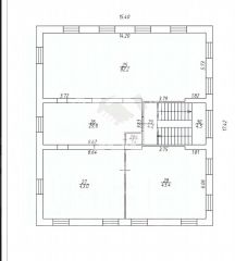
Продаются 2 полностью готовых и функционирующих здания с земельным участком 14 соток (в собственности). Преимущества:• Два капитальных здания на благоустроенном участке — полностью огороженная территория, парковка. • Все коммуникации центральные (водо-, тепло-, электричество, канализация). • Обе постройки в данный момент сданы в аренду — готовый доходный объект. • Участок и здания в собственности — прозрачная сделка.Описание объектовЗдание 1: 759 кв м • На каждом этаже: санузел и 6 кабинетов. • Сейчас все кабинеты сданы в аренду. • Имеется отдельное складское помещение. • Два входа со двора + отдельный вход с улицы (подходит под кафе, магазин, банк и т.п.). Здание 2 (офисногостиничный комплекс) 641,5 кв м • 1-й этаж — нежилое помещение, сдано в аренду (офисы). • 2-й и 3-й этажи — жилое назначение, полностью оборудованные номера: санузлы, душевые кабины, спальные места, кондиционеры — готовые к эксплуатации и функционируют в настоящее время. • Подвал полностью оборудован под СПА/сауну с бассейном — также сдается в аренду. Инвестиционная привлекательность• Стабильный арендный поток — объект приносит доход с первого дня. • Гибкие варианты использования: коммерция на первом этаже + гостиничная часть, возможность масштабирования, сделать квартиры и сдавать в аренду или продать. • Подходит для частного инвестора, оператора гостиниц/хостелов, сети кафе или медицинского центра.Документы и прозрачность• Объекты — в собственности, все документы готовы к проверке. • По запросу предоставлю: презентацию, подробные фотографии, планировки и выписки. Дополнительная информация• Парковочные места на территории. • Огороженная охраняемая территория+ круглогодичная будка для сторожа. • Имеется здание без ремонта, строилось под кафе. Показы и связь:• Оперативный показ по согласованию. • По всем вопросам, для получения презентации, фото и планов, договоров аренды и для организации просмотра — звоните или пишите (оперативный ответ и сопровождение сделки).Юридическое сопровождение входит в стоимость.
1400 м2
- Показать контакты
- Добавить в избранное
1400 м2
150 000 000
107 143 /м2
